Elevador de estacionamento
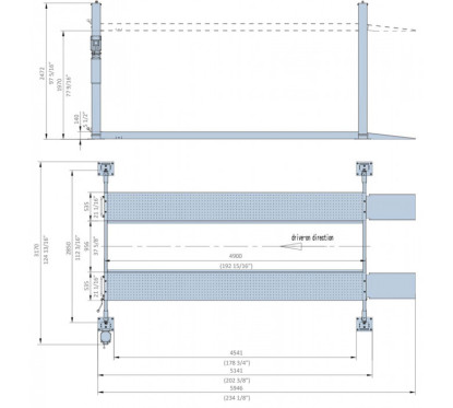
O elevador de estacionamento CSH440P é uma solução prática e fiável para otimizar o seu lugar de estacionamento. Adequado para particulares, colecionadores e entusiastas da mecânica, este modelo combina simplicidade de instalação e robustez, oferecendo uma capacidade máxima de carga de 4 toneladas .
1 415 €









